公司根据西方发达国家提出的污泥处理方案,结合我国国情和节能减排政策在学习和研究同行有关污泥处理方案的基础上,集众家之所长,在上海交大、上海同济大学等科研院校的帮助下,摸索出了一整套适合我国国情的污泥处理适用型新方案——污泥表面量化破壁改性与机械挤压脱水集成方案,获得含固率较高的泥饼,从而实现泥水分离,并在关联节点做了不断优化完善,目前已形成4种规格型号系列,以适应不同的污泥处理量及客户不同的需求。 KTSD脱水机分低压,中压,高压,超高压四个压滤区压滤动作均由气动元件自动控制,变频调速根据产量和含水率要求进行调节,此压滤设备改变了传统意义上的污水凝聚后的压滤而是膏糊状类污泥直接压滤的格局。
适用于市政污泥、石油炼化、制革、印染造纸、煤化选矿、钢铁酸洗、化工制糖、食品加工等,同时对果类榨汁残渣脱水。优点:该系统操作简单,运行成本低,污泥经改性后直接由压滤机压滤脱水,不堵塞

工作原理:通过对含水率80%左右的污泥进行化学调质改性处理后再高压挤压脱水至含水率60%以下,KTSD压滤脱水机是由上下两条张紧的滤带夹带着污泥层,从一连串有规律排列的辊压筒中呈S型经过依靠滤带本身的张力形成对污泥的挤压和剪切力,把污泥层中的毛细水挤压出来,获得含固率较高的泥饼,从而实现污泥的脱水。

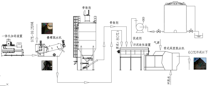
工作流程图:

设备特点:可以直接与原始污泥出口对接,不另行配置,直接连接,从进料到出泥饼几分钟完成,从而达到不间断连接生产的目的不需要预留中间堆放场地,大大减少了污泥处理处置过程的投资、运营成本和环境危害。

机型 | 带宽(mm) | 处理量(kg/h) (80%) | 功率(Kw) | 净重(kg) | 运行重量(kg) | 外形尺寸 | ||
长(mm) | 宽(mm) | 高(mm) | ||||||
KTDS500 | 500 | 400-800 | 2.57 | 2350 | 2750 | 2810 | 1420 | 2400 |
KTDS1000 | 1000 | 800-1600 | 4.37 | 3600 | 4300 | 3380 | 1860 | 1750 |
KTDS1500 | 1500 | 1750-3500 | 6.25 | 6700 | 7800 | 4700 | 2360 | 2400 |
KTDS2000 | 2000 | 3000-6000 | 8.25 | 9100 | 10600 | 5020 | 2880 | 2460 |
工艺流程:
1)经过叠螺式污泥脱水机初级脱水,将含水率99%的污泥降至含水率75%-85%。
2)调理后的污泥定量输送至密相带式深度脱水机上方的污泥布料器中,在机械作业下,污泥形成大小均匀的泥团分布在密相带式深度脱水机进泥口表面的滤带上,在电机的驱动下,上下两条张紧的滤带夹带着污泥依次通过低压区、中压区、高压区与超高压区,污泥中的水分逐步被挤压分离出来,最终含水率降至60%以下。经过设置在相应区域的滤液收集槽收集外排,泥饼经设备末端从滤布表面分离出来。
3)脱水后的泥饼经螺旋输送机输送至污泥料仓中外运处理。
